Rif: IMMO-123043031
SAN GIORGIO LUCANO
MATERA
10 KM DAL PARCO DEL POLLINO
30 KM DAL MAR IONIO (POLICORO)
90 KM DAL MAR TIRRENO (MARATEA)
100 KM DAI SASSI DI MATERA (CITTA' DELLA CULTURA 2019)
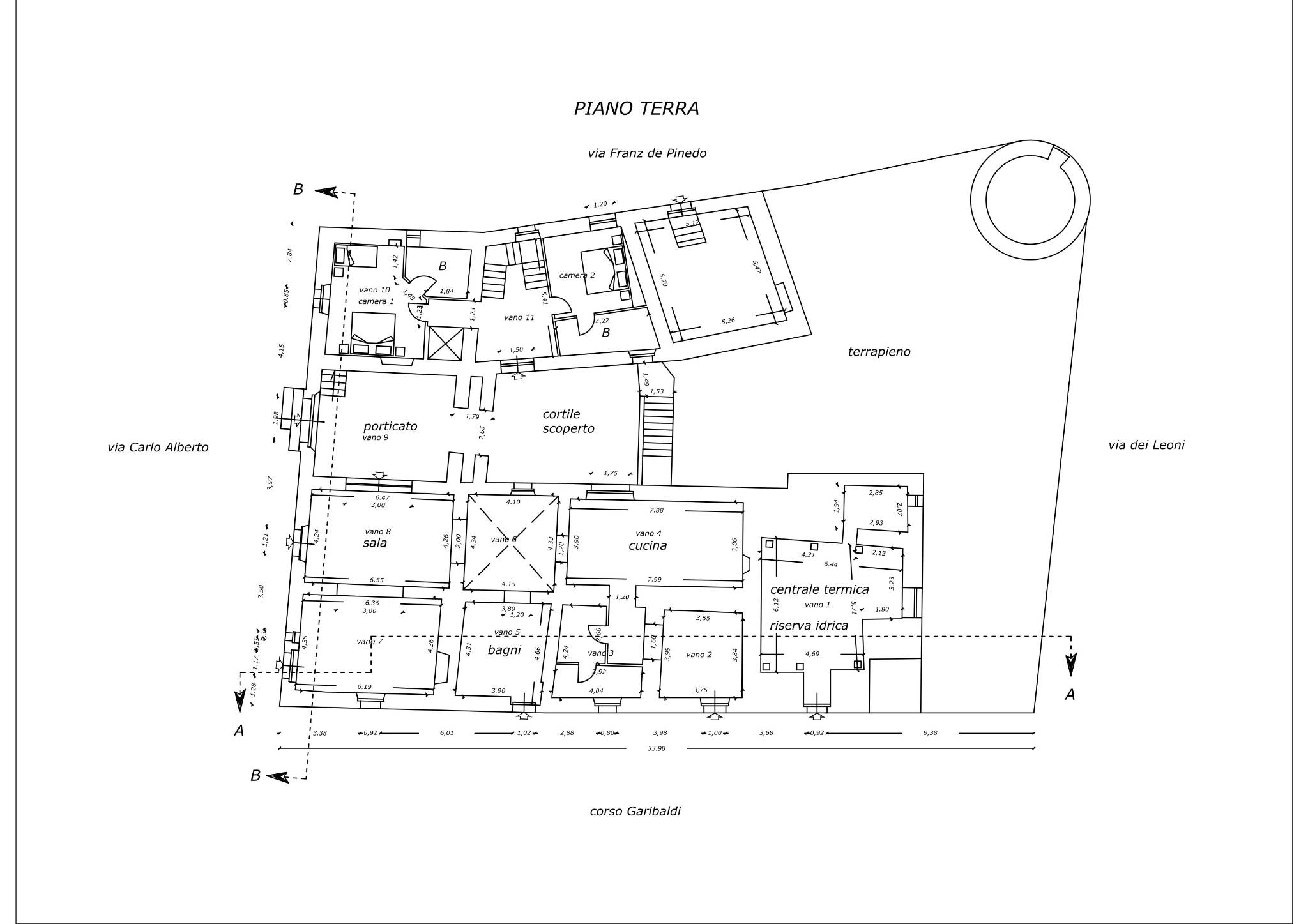
Dal cuore della storia nasce un progetto innovativo: il restauro e la RI funzionalizzazione di Palazzo Ripa, un elegante edificio del XVIII secolo situato nel centro storico di San Giorgio Lucano (MT), in fase di trasformazione in Residenza Sanitaria Assistenziale per anziani.
Il palazzo, simile al castello di Napoli, con la sua inconfondibile architettura signorile, il cortile interno, gli antichi giardini e la torre circolare di avvistamento, sarà oggetto di un intervento di restauro e risanamento conservativo, pensato per preservare la bellezza storica e allo stesso tempo garantire e vivere nel massimo comfort.
Gli spazi verranno ridistribuiti per offrire ambienti moderni, funzionali e completamente accessibili: camere accoglienti con bagno privato, aree comuni dedicate alla socialità, zone verdi per il relax e servizi tecnologici all'avanguardia per la cura e l'assistenza.
Il progetto non rappresenta solo un importante recupero architettonico, ma anche una scelta di valore sociale e territoriale: una nuova struttura in grado di rispondere ai bisogni della comunità, creare occupazione e trasformare un palazzo storico in un luogo di vita, dignità e bellezza.
✨ Palazzo Ripa – la tradizione che si rinnova, la storia che accoglie il futuro.
30 KM DAL MAR IONIO (POLICORO)
90 KM DAL MAR TIRRENO (MARATEA)
100 KM DAI SASSI DI MATERA (CITTA' DELLA CULTURA 2019)
Dal cuore della storia nasce un progetto innovativo: il restauro e la RI funzionalizzazione di Palazzo Ripa, un elegante edificio del XVIII secolo situato nel centro storico di San Giorgio Lucano (MT), in fase di trasformazione in Residenza Sanitaria Assistenziale per anziani.
Il palazzo, simile al castello di Napoli, con la sua inconfondibile architettura signorile, il cortile interno, gli antichi giardini e la torre circolare di avvistamento, sarà oggetto di un intervento di restauro e risanamento conservativo, pensato per preservare la bellezza storica e allo stesso tempo garantire e vivere nel massimo comfort.
Gli spazi verranno ridistribuiti per offrire ambienti moderni, funzionali e completamente accessibili: camere accoglienti con bagno privato, aree comuni dedicate alla socialità, zone verdi per il relax e servizi tecnologici all'avanguardia per la cura e l'assistenza.
Il progetto non rappresenta solo un importante recupero architettonico, ma anche una scelta di valore sociale e territoriale: una nuova struttura in grado di rispondere ai bisogni della comunità, creare occupazione e trasformare un palazzo storico in un luogo di vita, dignità e bellezza.
✨ Palazzo Ripa – la tradizione che si rinnova, la storia che accoglie il futuro.
Consistenze
| Descrizione | Superficie | Sup. comm. |
|---|---|---|
| Principali | ||
| Altro - piano terra | 850 Mq | 850 Mqc |
| Altro - 1° piano | 850 Mq | 850 Mqc |
| Totale | 1.700 Mqc | |






