Rif: 455V
BUDONI
SASSARI
In posizione tranquilla e riservata, a soli 500 metri dalla spiaggia e dal porto turistico, proponiamo una villa a schiera centrale disposta su due livelli, ideale come casa vacanze o abitazione principale. Superficie abitativa: circa 60 mq
Spazi esterni: 40 mq di area piastrellata con ripostiglio e 100 mq di giardino privato, perfetti per vivere all'aperto in totale relax.
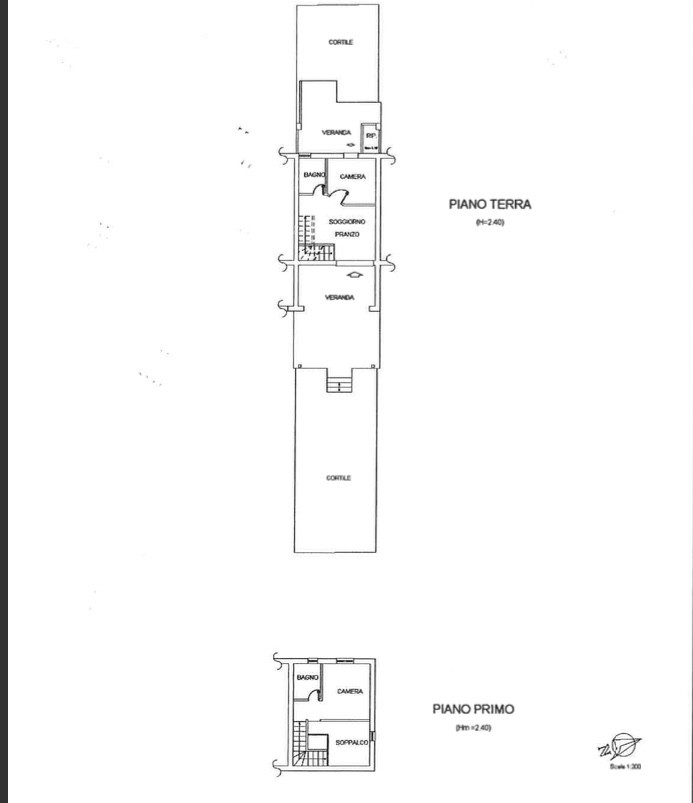
Composizione interna:
Piano terra: soggiorno con angolo cottura, bagno, ampia veranda coperta di circa 60 mq, zona piastrellata di 40 mq con ripostiglio;
Piano primo: camera matrimoniale, soppalco e secondo bagno.
La villa è luminosa, ben tenuta e inserita in un contesto curato, a pochi passi dai principali servizi e dal mare.
Una soluzione ideale per chi desidera comfort, indipendenza e la vicinanza alla spiaggia.
Per maggiori informazioni e per fissare una visita, contattaci al 02-4409066 oppure al 3249017743 Il presente annuncio ha valore puramente indicativo e non costituisce elemento contrattuale. ABITAREPETRARCA.COM si rende disponibile ad una valutazione gratuita del Vostro immobile Esperienza di 50 anni nel settore immobiliare, Abitarepetrarca La tua agenzia di fiducia. Contattaci senza impegno
Spazi esterni: 40 mq di area piastrellata con ripostiglio e 100 mq di giardino privato, perfetti per vivere all'aperto in totale relax.
Composizione interna:
Piano terra: soggiorno con angolo cottura, bagno, ampia veranda coperta di circa 60 mq, zona piastrellata di 40 mq con ripostiglio;
Piano primo: camera matrimoniale, soppalco e secondo bagno.
La villa è luminosa, ben tenuta e inserita in un contesto curato, a pochi passi dai principali servizi e dal mare.
Una soluzione ideale per chi desidera comfort, indipendenza e la vicinanza alla spiaggia.
Per maggiori informazioni e per fissare una visita, contattaci al 02-4409066 oppure al 3249017743 Il presente annuncio ha valore puramente indicativo e non costituisce elemento contrattuale. ABITAREPETRARCA.COM si rende disponibile ad una valutazione gratuita del Vostro immobile Esperienza di 50 anni nel settore immobiliare, Abitarepetrarca La tua agenzia di fiducia. Contattaci senza impegno
Consistenze
| Descrizione | Superficie | Sup. comm. |
|---|---|---|
| Principali | ||
| Immobile - piano terra | 60 Mq | 60 Mqc |
| Giardino/Resede | 100 Mq | 10 Mqc |
| Totale | 70 Mqc | |






